上尾市大字上

価格 2,699万円

1/12

物件番号「10784」をお伝えください。

電話でお問合せ

物件情報

価格 2,699万円
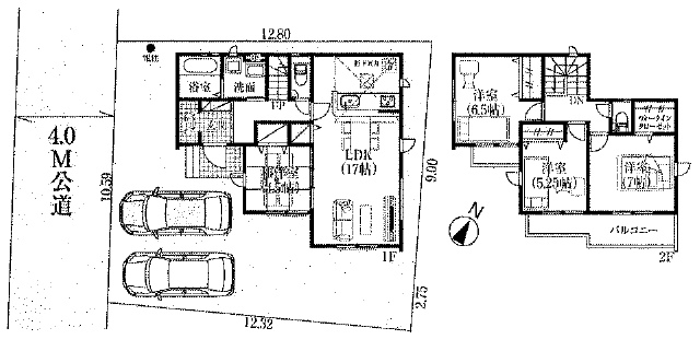
間取 4LDK
間取詳細
所在地
上尾市大字上
学区 上平北小学校 480m/上平中学校 1,350m
交通 JR高崎線・湘南新宿ライン・上野東京ライン 桶川駅 徒歩25分
種目 新築戸建
土地面積 140.17m²
建物面積 99.36m²
建ぺい率 60%
容積率 160%
建物構造 木造
地目 宅地
土地権利 所有権
借地料 -
用途地域 無指定
取引態様 一般媒介
西暦築年月
築年月 2025/06
引渡時期 即時
諸費用(全て)
接道(全て) 南西 4m(幅員) 公道
セットバック
特色 防犯断熱玄関ドア、24時間換気、玄関収納下駄箱、低ホルモアルデヒド、1Fシャッター、カウンター対面キッチン、テレビモニター付インターフォン、公営水道、東京電力、洗面化粧台三面鏡、手すり付階段、べた基礎、バリアフリー、シャンプードレッサー付洗面化粧台、全居室クロゼット付、エコジョーズ、床下収納、全居室ペアガラス、ユニットバス、浄水器一体型シャワー水栓、LED照明(玄関廊下キッチントイレ洗面所)、外壁サイディング、駐車2台以上、フローリング、電子カードキー、都市ガス、小学校10分以内、駐車並列2台以上、個別浄化槽

更新情報

情報更新日 2025年10月13日
次回更新予定日 2025年10月14日

物件番号「10784」をお伝えください。

電話でお問合せ
電話でお問合せ メールでお問合せ
簡易お問合せ

お名前


メールアドレス


問合せ内容


OK