物件番号「10900」をお伝えください。
| 価格 | 2,690万円 |
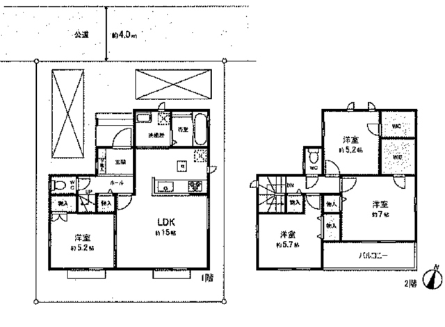
| 間取 | 4LDK |
| 間取詳細 | |
| 所在地 | |
| 学区 | 上平北小学校 1,070m/上平中学校 2,210m |
| 交通 | JR高崎線・湘南新宿ライン・上野東京ライン 桶川駅 徒歩18分 |
| 種目 | 新築戸建 |
| 土地面積 | 105.78m² |
| 建物面積 | 93.98m² |
| 建ぺい率 | 60% |
| 容積率 | 160% |
| 建物構造 | 木造 |
| 地目 | 山林 |
| 土地権利 | 所有権 |
| 借地料 | - |
| 用途地域 | 無指定 |
| 取引態様 | 一般媒介 |
| 西暦築年月 | |
| 築年月 | |
| 引渡時期 | |
| 諸費用(全て) | |
| 接道(全て) | 北西 4m(幅員) 公道 |
| セットバック | |
| 特色 | 防犯断熱玄関ドア、24時間換気、玄関収納下駄箱、低ホルモアルデヒド、1Fシャッター、カウンター対面キッチン、テレビモニター付インターフォン、公営水道、東京電力、洗面化粧台三面鏡、手すり付階段、べた基礎、バリアフリー、シャンプードレッサー付洗面化粧台、全居室クロゼット付、エコジョーズ、床下収納、全居室ペアガラス、ユニットバス、浄水器一体型シャワー水栓、LED照明(玄関廊下キッチントイレ洗面所)、外壁サイディング、1F2Fウォシュレット、都市ガス、駐車2台以上、食器洗浄乾燥機、個別浄化槽 |
| 情報更新日 | 2026年04月06日 |
| 次回更新予定日 | 2026年04月07日 |
物件番号「10900」をお伝えください。