物件番号「10914」をお伝えください。
| 価格 | 3,080万円 |
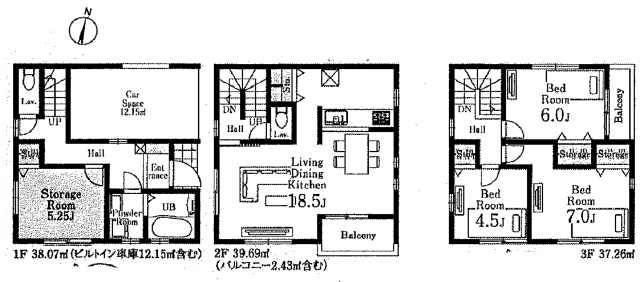
| 間取 | 4LDK |
| 間取詳細 | |
| 所在地 | |
| 学区 | 上尾東小学校 550m/上尾東中学校 1,000m |
| 交通 | JR高崎線・湘南新宿ライン・上野東京ライン 上尾駅 徒歩20分 |
| 種目 | 新築戸建 |
| 土地面積 | 67.32m² |
| 建物面積 | 115.02m² |
| 建ぺい率 | 60% |
| 容積率 | 160% |
| 建物構造 | 木造 |
| 地目 | 宅地 |
| 土地権利 | 所有権 |
| 借地料 | - |
| 用途地域 | 第一種中高層住居専用地域 |
| 取引態様 | 仲介 |
| 西暦築年月 | |
| 築年月 | |
| 引渡時期 | 即時 |
| 諸費用(全て) | |
| 接道(全て) | 東 4m(幅員) 私道 |
| セットバック | 無 |
| 特色 | ★上尾市本町4丁目の 新築戸建て 1号棟 個別プロパンガス、駅徒歩15分、角地:シャッタ:バリアフリー・プロパンガス・カースペース2台・システムキッチン・床下収納庫・テレビモニター付インターホン・玄関断熱ドア・ペアガラス・ユニットバス・フラット35S可・シャワー付洗面化粧台・シャワートイレ・外壁サイデング・階段浴室トイレに手摺設置・高効率給湯器・優良住宅取得支援制度・性能評価書において6項目の最高等級取得・耐風等級・老化対策等級・ホルモアルデヒド発散等級・浄水器一体型シャワー水栓・対面キッチン、24時間換気、駐車2台以上、小学校10分以内、シャンプードレッサー付洗面化粧台、全居室クロゼット付、バリアフリー、1F2Fウォシュレット、全居室ペアガラス、人工大理石カウンターシステムキッチン、玄関収納下駄箱、駐車並列2台以上、低ホルモアルデヒド、床下収納、1Fシャッター、外壁サイディング、整形地、カウンター対面キッチン、本下水、システムバス、テレビモニター付インターフォン、公営水道、電子カードキー、フローリング、東京電力、浄水器一体型シャワー水栓、べた基礎、LED照明(玄関廊下キッチントイレ洗面所)、防犯断熱玄関ドア、手すり付階段 |
| 情報更新日 | 2026年05月09日 |
| 次回更新予定日 | 2026年05月10日 |
物件番号「10914」をお伝えください。