物件番号「10951」をお伝えください。
| 種目 | 中古マンション |
| 価格 | 8,499万円 |
| 物件名 | ハイネスロフテイ |
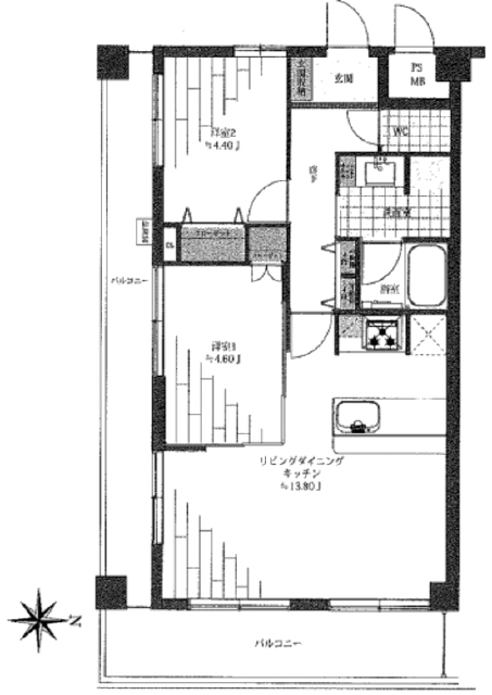
| 間取 | 2LDK |
| 間取詳細 | |
| 総戸数 | 127戸 |
| 階/階建 | 12階/地上13階建 |
| 所在地 | 東京都新宿区西新宿4丁目 |
| 学区 | / |
| 交通 | 山手線 新宿 徒歩13分 |
| 専有面積 | 52.25m² |
| バルコニ面積 | 17.58m² |
| バルコニ方向 | 南 |
| 建物構造 | 鉄骨鉄筋コンクリート造 |
| 駐車場 | 空有 |
| 駐車場料金 | 50,000円 |
| 修繕積立費 | 11,200円 |
| 取引態様 | 一般媒介 |
| 用途地域 | 商業地域 |
| 管理形態 | 全部委託 |
| 築年月 | 1979/02 |
| 引渡時期 | |
| 諸費用 | |
| 特色 | 都市ガス、本下水、二階以上、公営水道、東京電力、システムキッチン、照明器具、給湯器、フローリング、フルリノベーション物件、浴室暖房乾燥機、温水洗浄便座、エレベータ、事務所使用可、ペット不可、駅徒歩15分以内、駐車場空有り |
| 情報更新日 | 2026年04月19日 |
| 次回更新予定日 | 2026年04月20日 |
物件番号「10951」をお伝えください。