2026年2月21日 15時59分 更新
次回更新予定日:2026年2月22日
有限会社 メディアエステート
上尾市原市北 戸建物件情報
お急ぎの方はこちらまでお電話ください
0120-213-517
トップページへ
>
居住用エリア別一覧
> 物件情報
エリア別一覧
間取一覧
写真一覧
地図一覧
地域一覧
この他にも、売主様等のご都合により、ホームページ上に記載できない物件が多数ございます。
希望条件登録をして頂ければ、ご紹介出来ます。
登録はこちらから ⇒
こちら
既に会員登録がお済の方はこちらから ⇒
クリック
物件番号
所在地
価格
バス
徒歩
土地面積
建物面積
間取
構造
築年月
引渡時期
詳細
画像
Bk10930
上尾市原市北1丁目
4,298万円
−
2分
108.61m
2
101.64m
2
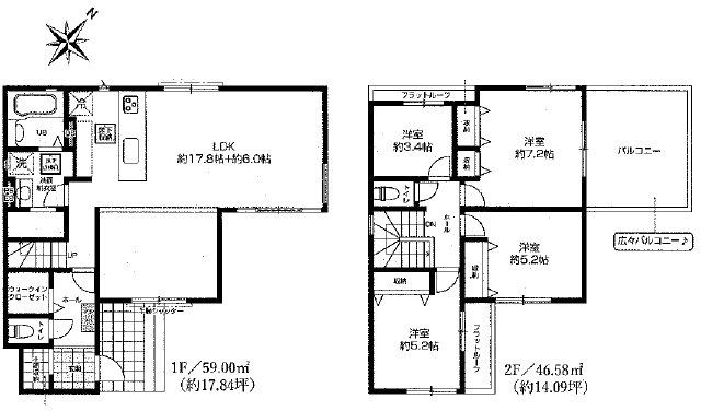
3LDK
木造
即時
Bk10928
上尾市原市北1丁目
4,498万円
−
3分
152.17m
2
101.17m
2
4LDK
木造
即時
Bk10931
上尾市原市北1丁目
4,498万円
−
5分
139.79m
2
105.58m
2
4LDK
木造
ページトップへ